Accommodatie
Onze sportaccommodatie
De Stichting Sportaccommodatie RHC (SSRHC) beheert en exploiteert de vier kunstgrasvelden aan de Lange Kleiweg in Rijswijk. De Rijswijksche Hockey Club is de hoofdgebruiker van deze velden. Meer weten? Kijk op de website van SSRHC voor informatie over beheer, gebruik en contact.
Schade? Laat het ons weten
Heb je schade gezien aan de sportaccommodatie of per ongeluk zelf iets veroorzaakt? Meld het dan even, zodat we het snel kunnen oplossen. Mail naar [email protected] Vermeld de datum en tijd, en voeg eventueel een foto toe.
Alvast bedankt voor je melding. Samen houden we de club netjes.
Afscheid van ons oude en vertrouwde clubhuis
Op zondag 23 november namen we met een knallend feest/TD afscheid van ons clubhuis. Wat een dag… wat een sfeer… wat een club!
Ons "End of an Era" en TD "Neon in White" was er eentje om nooit te vergeten. Van jong tot oud, iedereen kwam samen om nog één keer te genieten van ons oude, vertrouwde clubhuis.
En ... het dak ging eraf!
Onze zanger kreeg iedereen aan het dansen en meeblèren; jeugd en veterin. De bar draaide op volle toeren, er werd gelachen, gezongen en heel veel herinneringen opgehaald.
Wall of Memory; vol verhalen en liefde
Misschien wel het mooiste van de dag: de Wall of Memory. Een muur vol namen, boodschappen, tekeningen en herinneringen van RHC’ers door de jaren heen. Van kabouter tot trimhockeyer, iedereen liet zijn of haar stempel achter.
Een eerbetoon aan alles wat we samen hebben beleefd in dit clubhuis. Het voelde als een afscheid, maar ook als een nieuw begin.
Nieuw Clubhuis voor RHC
In oktober 2024 stemde de Algemene Ledenvergadering in met de ontwikkeling van een nieuw clubhuis, onderdeel van de multifunctionele herinrichting van sportpark Elsenburg (MFA). Met dit besluit hebben we samen een belangrijke stap gezet richting de toekomst van onze club. Het nieuwe clubhuis wordt voor én door de leden van RHC ontwikkeld, gestyled en ingericht.
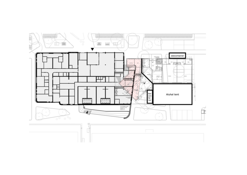
Tijdelijke accommodatie
Tijdens de winterstop 2025–2026 wordt de tijdelijke accommodatie geplaatst en verhuizen we het interieur naar een Alu Hal. In en rondom de hal blijven we gewoon doen wat we altijd doen: dezelfde producten aanbieden, evenementen organiseren en samen een gezellige tijd maken. De fietsenstalling krijgt een andere plek en het terras wordt opgebouwd tussen veld 1 en de Alu Hal.
Op weg naar een nieuw RHC-clubhuis
Wil je zien hoe het er uit gaat zien en welk proces we tot nu toe hebben afgelegd? Druk op de button, zie
Documenten en de site van de
Gemeente Rijswijk.















